£285,000 (Leasehold)

Calculate your mortgage repayments

2 bedroom Flat for sale

Woodwicks, Maple Cross, WD3

  • Flat
  • 2 bed
  • 1 bath
  • 1 reception

Summary

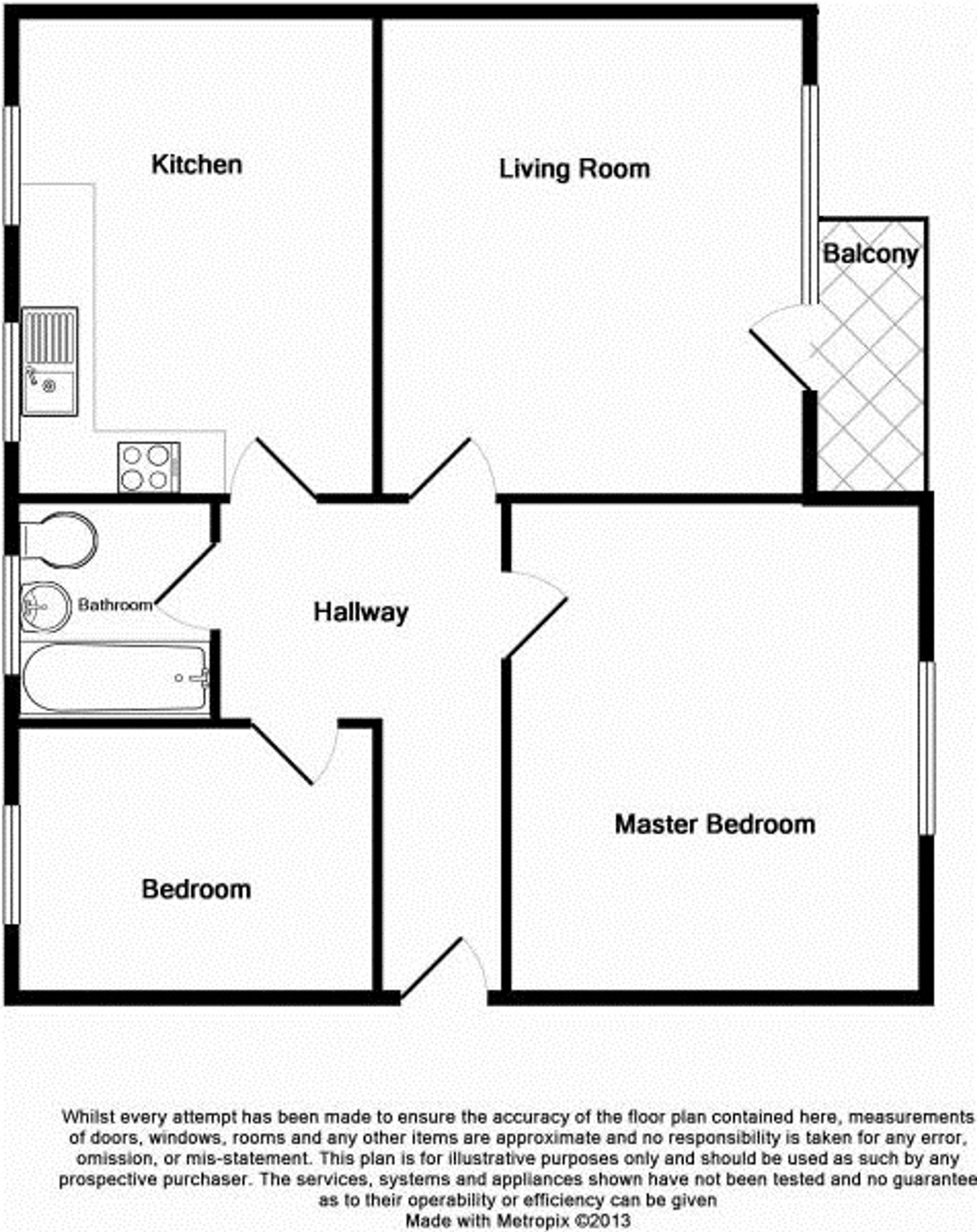
A spacious TWO DOUBLE BEDROOM SECOND FLOOR APARTMENT overlooking communal grounds with local amenities nearby.

Key Features

  • LIVING ROOM
  • MODERN FITTED KITCHEN/DINER
  • TWO DOUBLE BEDROOMS
  • BATHROOM
  • BALCONY
  • COMMUNAL GROUNDS
  • PARKING
  • COUNCIL TAX BAND: C

Description

The property offers a spacious living/dining room with a double-glazed door leading to a private balcony, a modern fitted kitchen with ample space for a dining table, two bedrooms and a bathroom.

There are communal grounds surrounding the property and there is parking available.


Location

Woodwicks is situated off Longcroft Road, just off the North Orbital Road and within a couple of minutes' drive to Junction 17 of the M25. It is also a short drive from Rickmansworth Town Centre and Metropolitan/Chiltern Line station.


Floorplan

Floorplan

EPC

EPC for Woodwicks, Maple Cross, WD3

*This mortgage calculator is provided for general information purposes only. It's intended to provide you with an estimate of your potential mortgage payments and does not constitute an offer of finance or advice. The calculations are based on the information you provide and do not take into account your individual needs and circumstances.

The calculator does not include all the costs you will need to pay when taking out a mortgage. Your actual mortgage payments may be higher or lower than the estimates provided by this calculator. The interest rates used in the calculations are subject to change and may not reflect the actual rates available in the market.

Please note that the calculator does not consider changes in interest rates over time, early repayment charges, or any other fees and charges that may apply to your mortgage. You should always seek professional advice before making any financial decisions.

Remember, your home may be repossessed if you do not keep up repayments on your mortgage.

Calculate Your Stamp Duty
£
Results
Stamp Duty To Pay:
Effective Rate:
Tax Band % Taxable Sum Tax

£ 0
£ 0

Your estimated gross rental yield would be:

0.00%
Share this property